
Архитектурное проектирование общественных зданий
Школы, музеи, офисы — от градостроительного обоснования до авторского надзора
Школы, музеи, театры, офисные центры, многофункциональные комплексы — от градостроительного обоснования до авторского надзора. Каждый объект — часть городской ткани, а не случайный объём.
Посмотреть проектыОбщественное здание живёт десятилетиями — ошибки множатся годами
Общественное здание живёт десятилетиями — и каждая ошибка в проектировании множится годами эксплуатации
Проектируем от функции к форме — нормативы, доступность и бюджет учтены с первого дня.
Мы проектируем общественные здания от функции и потоков — к форме. Нормативная база, доступность, энергоэффективность и бюджет учитываются с первого дня. Результат — объект, который работает на город, а не создаёт проблемы эксплуатационным службам.
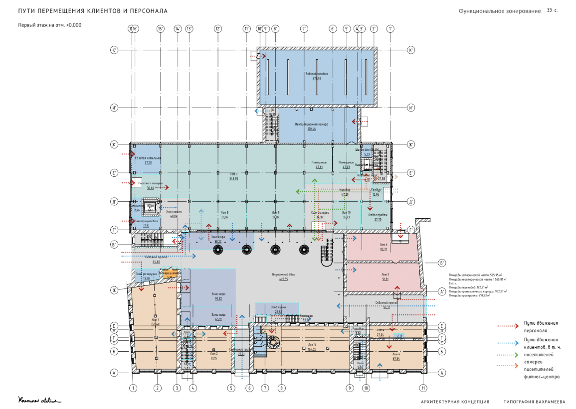
Функция и потоки
Кто и как пользуется зданием. Потоки разделены до начала проектирования.
Начинаем с функциональной программы: кто, сколько, когда и как пользуется зданием. Потоки посетителей, персонала и логистики разделены до начала проектирования.

Нормативы и экспертиза
Пожарная безопасность, доступность, СанПиН — всё заложено с первого эскиза.
Общественные здания — самый зарегулированный тип объектов. Пожарная безопасность, доступность, инсоляция, СанПиН — всё закладываем с первого эскиза, а не подгоняем перед экспертизой.

Город как контекст
Анализируем окружение и связи — здание вписывается в город и усиливает его.
Общественное здание — не изолированный объект. Анализируем окружение, пешеходные связи, транспорт и визуальные оси. Здание вписывается в город и усиливает его.

Здание начинается с города
Анализ градостроительного контекста: пешеходные потоки, транспортная доступность, визуальные связи. Общественное здание — точка притяжения, и мы проектируем его как часть городской системы.
Гибкость на десятилетия
Общественные здания меняют функцию быстрее, чем стареют конструкции. Проектируем с запасом гибкости: свободная планировка, модульные перегородки, избыточность инженерии.
Энергоэффективность и эксплуатация
Общественные здания эксплуатируются интенсивно. Оптимизируем ограждающие конструкции, инженерные системы и материалы отделки — чтобы снизить стоимость владения.
BIM и информационная модель
Проектируем в BIM — единая модель, в которой связаны архитектура, конструкции, инженерия. Для эксплуатирующей организации передаём модель с привязкой к системе обслуживания.
Доступная среда — не чеклист
Проектируем доступность как часть архитектуры, а не формальное дополнение. Пандусы, лифты, навигация, тактильные поверхности — интегрированы в проект естественно.
Школы, университеты, детские сады
Проектируем образовательные объекты с учётом современных педагогических моделей: трансформируемые классы, рекреации как учебные пространства, безопасная территория.

Музеи, театры, выставочные пространства
Проектируем объекты культуры с учётом экспозиционных требований, акустики, климат-контроля и потоков посетителей. Архитектура усиливает впечатление от контента.

Рабочие пространства, которые работают
Проектируем офисные здания и бизнес-центры с оптимальной планировкой этажей, эффективной сеткой колонн и инженерией, рассчитанной на современных арендаторов.

Многофункциональные и социальные комплексы
Проектируем объекты со смешанной функцией: торговля, офисы, культура, спорт. Каждая функция имеет свой поток, инженерию и режим работы — интегрируем их в единый организм.

Школы, университеты, детские сады
Проектируем образовательные объекты с учётом современных педагогических моделей: трансформируемые классы, рекреации как учебные пространства, безопасная территория.

Консультация
Консультация
Обсудим архитектуру и маркетинг, сформируем
рекомендации и коммерческое предложение

От задания — до ввода в эксплуатацию
От задания на проектирование— до ввода здания в эксплуатацию
Полный цикл проектирования или подключение на любой стадии.
Ведём полный цикл проектирования или подключаемся к существующему проекту — на стадии концепции, документации или экспертизы.
Задание на проектирование
Функциональная программа, нормативная база, градостроительные ограничения. Формируем ТЗ с экономическим обоснованием.
Архитектурная концепция
Объёмно-планировочное решение, фасады, генплан участка. Визуализация для согласования с заказчиком и органами власти.
Проектная документация
Стадия П: все разделы для государственной экспертизы. Конструкции, инженерия, пожарная безопасность, доступность, энергоэффективность.
Экспертиза
Сопровождение государственной экспертизы, работа с замечаниями, получение положительного заключения.
Рабочая документация
Стадия Р: полный комплект чертежей для строительства, спецификации, узлы, детали, ведомости.
Авторский надзор
Контроль реализации на площадке, согласование изменений, приёмка скрытых работ до ввода в эксплуатацию.
Музей вина «Urban Wine»
Музей вина и дегустационный центр с выставочной экспозицией, винотекой и фирменным залом приёма гостей.
Музей вина «Urban Wine»
Музей вина и дегустационный центр с выставочной экспозицией, винотекой и фирменным залом приёма гостей.
Проектирование общественных зданий
Задать вопрос
Оставьте заявку - свяжемся с консультацией и предложением под ваши задачи







